Steeplechase
CBD Real Estate Investment LLC announces the purchase of a 98 acre Orange Orchard from Flying V Ranch. Closing of the property is scheduled for the fourth quarter of 2022. This property will consist of 322 single family lots. Lots will range in size with a mixture of 45, 55, and 65 foot frontage lots. M/I Homes of Tampa is the contract purchaser of the development and it is expected to close title by the second quarter of 2023.

Iron Mountain
CBD Real Estate Investment LLC announces the acquisition of 78 acres of residential land from VDM Enterprises. This property is located on the northwest corner of Burns Avenue and Buck Moore Road in Lake Wales, Florida. The property will have a total of 345 lots that include 144 lots that are 40’x110′ single family lots, 129 lots that are 50’x110′ single family lots, and 72 lots that are 60’110′ single family lots. The site is currently going through preliminary site plan review and should be ready for development by the second quarter of 2023.

Groves at Orchard Hills
CBD Real Estate Investment LLC announces the acquisition of a 236 acre property located south of Bellview Road, north of Passion Play Road, east of scenic hwy and west of hwy 17. In Lake Wales, Polk County Florida. There will be a total of 915 lots, which includes 364 lots that are 45’x110′ single family lots, 324 that are 50’x110′ single family lots, and 227 lots that are 60’x110′ single family lots. There will also be 3 acres of commercial retail where 28,300 sq ft shopping center is proposed. This project is currently going through the approval process and is expected to be ready for construction by the fourth quarter of 2022.

Liberty Trace
CBD announced the acquisition and planning on a new 18.18 acre property located off of Hinson Road in Haines City, Polk County, Florida. Here CBD is seeking approvals for 81 single family detached homes. The property is currently going through permitting with an expected permit completion date by the fourth quarter 2020. CBD has entered into an agreement of sale with Hanover Homes to sell Hanover the permitted, shovel ready property for an undisclosed sales price. Closing is expected by the fourth quarter 2021.

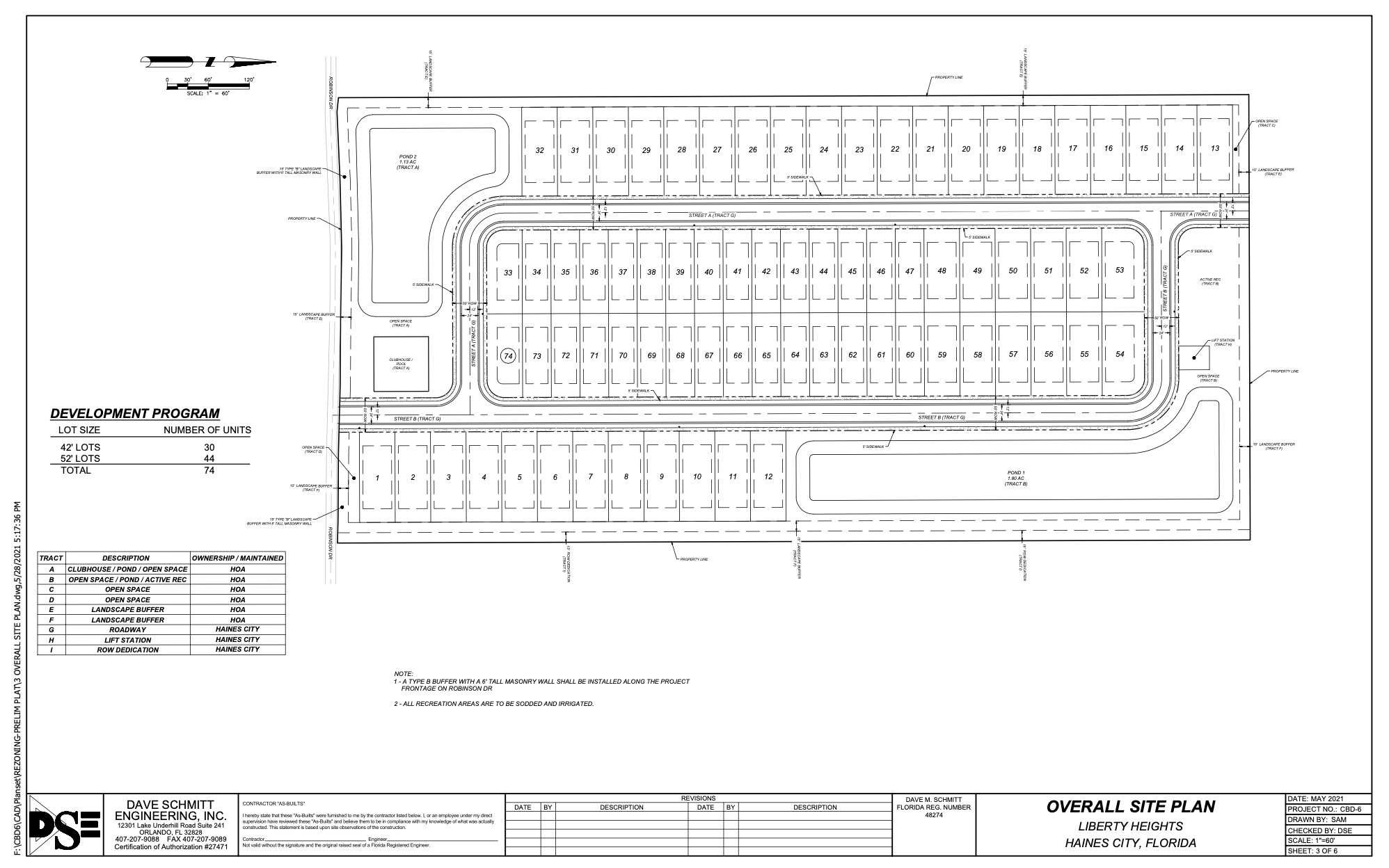
Liberty Heights
CBD announced the acquisition of another 20 acre property located off of Robinson Road in Haines City, Polk County Florida. The acquisition was concluded in April 2021 for an undisclosed sales price. CBD is seeking approval for 74 single family homes. The property is expected to be permitted by the third quarter 2022. The development is under agreement of sale to Richmond American Homes for an undisclosed sales price. Title closing is expected to occur by the fourth quarter 2022.

Peace Creek
CBD has announced the joint venture co development of a 373 acre property located in the unincorporated section of Bartow, Polk County, Florida. The Joint Venture development agreement was executed in February 2021. Here CBD is in the early stages of the permitting of a large master planned community of over 1120 single family lots. The permitting is expected to take two years and the property is expected to be brought to market by the end of 2022 or early 2023. No terms of the Joint Venture have been disclosed.

Robins Walk
CBD has acquired a ten acre property where is plans 33 single family homes. The property is located off of Grant Avenue in Lake Wales, Polk County Florida. The property was acquired in March 2021 for an undisclosed price. Permitting is ongoing and the site is expected to be ready for construction by the first quarter 2022. Like Robins Run, Robins Walk was named in memory of Robin Mainardi…..may she rest in peace.

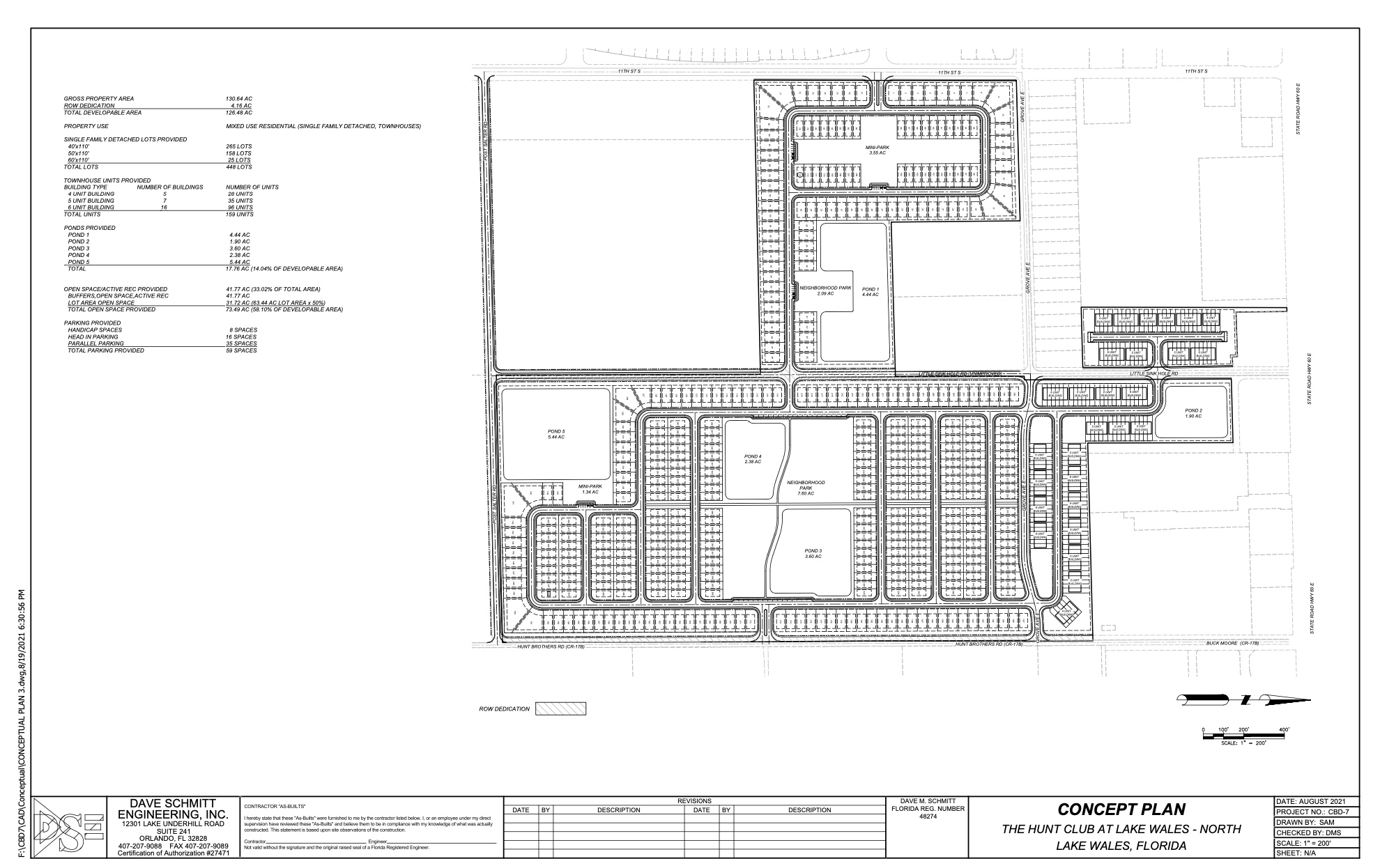
Hunt Club North
CBD announces the acquisition of over 160 acres of land located between 11th Street and Hunt Brothers Road south of State Highway 60 and north of Port Salter Road in Lake Wales, Polk County Florida. There are three sellers and all agreements of sale were signed in July 2021. The property is going through a partial annexation and rezoning to allow 159 town homes along with 448 single family lots. Permitting should conclude by the third quarter of 2022.
Little Pond
This property is located at 1110 Chews Landing Road in Gloucester Township, Camden County, NJ. The site was originally considered for a proposed 204 rental units; however, CBD is attempting to work with Gloucester township to create a more palatable development plan. One of the plans is to develop half of the property, 80 units, as for sale townhomes, and develop the remaining land for approximately 24,000 square feet of retail space. The site plan below shows the site plan for this proposal. For information regarding Little Pond, please contact David Waronker at dw@gocbd.com.


